Skip to content
ravishcorp.com
Architectural
Interior
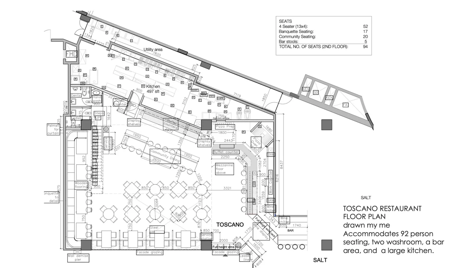
Tuscano Restaurant
Project Gallery
Scroll to Top